
Se vuoi trasformare la tua casa in un ambiente avvolgente e armonioso, il progetto di ristrutturazione firmato As architettura può darti la giusta ispirazione. È un esempio perfetto di equilibrio materico e funzionalità moderne, tra accenni verde bosco, pavimenti in legno e un camino, vero cuore del living.
Nel cuore di Roma, una casa di circa 200 metri quadrati, distribuita su due livelli, è stata completamente rinnovata dall’architetto Raffaella e l’interior designer Gigliola Arisi, che hanno collaborato per trasformare una residenza esistente in uno spazio che rispecchi appieno il gusto e le esigenze dei proprietari. L’ispirazione contemporanea si riflette nelle forme essenziali, nei materiali moderni e in una palette cromatica sofisticata, dove il verde bosco si fa notare con delicatezza senza mai essere invadente.
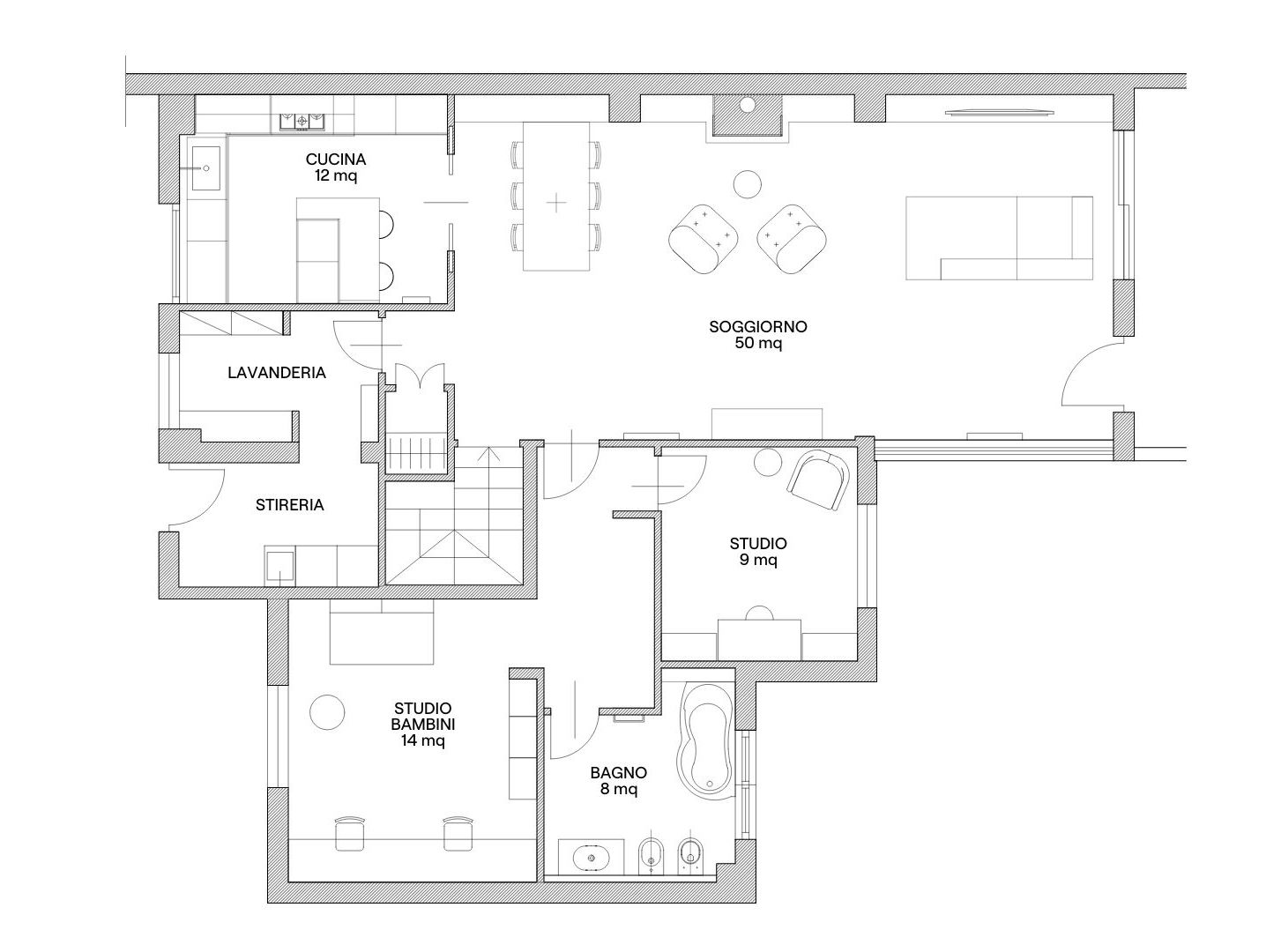
La divisione degli spazi è stata studiata con attenzione: la lavanderia e la stireria occupano ben 15 mq, rispondendo alle esigenze di praticità dei proprietari. Ogni ambiente è stato definito con precisione, creando una sequenza fluida di spazi che si integrano armoniosamente tra loro.

Scenografico, potente ed ecologico. Il calore della fiamma si accende nel camino a legna Ecomonoblocco trifacciale Palazzetti che permette una visione da tutti e tre i lati con rese elevate e minimi consumi di legna. Consente di distribuire l’aria calda tramite un sistema di canalizzazione, così da riscaldare più ambienti, anche su piani diversi, in modo rapido ed efficiente.

Questa zona dall’atmosfera un po' romantica diventa il fulcro attorno al quale ruotano le altre funzioni dell’open space di 50 mq: sala da pranzo, zona relax con TV e divano. Intorno al camino, una decorazione in brick tridimensionali offre spazi contenitivi e decorativi mentre due poltrone in morbido tessuto bouclé bianco invitano subito al relax.
La forma quadrata della cucina, con un’ampia finestra, ha suggerito una disposizione a L lungo il perimetro, arricchita da una penisola centrale con piano snack e sgabelli.

La cucina sorprende con un pavimento in cementine dal decoro floreale ma geometrico, a sottolineare il desiderio di ordine e pulizia. Lo stile è stato suggerito dalla campagna circostante. Una palette di colori ispirata alla natura con nuance verde bosco e grigio perla, si accostano a texture come il legno del top della penisola, creando un’atmosfera avvolgente e accogliente.
Funzionalità e cura dei dettagli sono evidenti anche nelle camere da letto. Per i bambini è stato scelto un comodo letto a castello con pratici cassettoni e un terzo letto estraibile per accogliere gli amici. È la soluzione perfetta per massimizzare lo spazio e offrire divertimento e comfort! È stata pensata anche una camera-studio con grandi scrivanie, una libreria e un divano per i momenti di tranquillità.
La carta da parati con motivi geometrici ripetuti enfatizza la parete e cattura lo sguardo, trasmettendo al tempo stesso giocosità e piacevolezza.

La camera padronale, invece, è circondata da foglie sulla carta da parati, tessuti morbidi e luci delicate. Tutto trasmette una sensazione di calma e relax. Il letto firmato Noctis unisce leggerezza a decoro e sembra evocare un senso di protezione, intimità e calore. Le testiere imbottite si curvano ai lati per avvolgere chi vi si appoggia, come in un morbido abbraccio.

Spazi Belli vi racconta progetti speciali e collabora con i migliori professionisti e aziende del settore
Credits
Progetto: Raffaella Sasso di AS Architettura e Gigliola Arisi di Dress Your Home
Produzione: Spazi Belli
Conduzione: Anastasia Leshchenko
Brand partner: Palazzetti